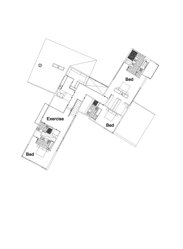
LINDSAY SMITH ARCHITECT
Collector's House | Drawings
Charlotte NC | Completed 2009
Back to Collector's House
Home